▮ PH中和装置

▮ 特性
PB型pH制御ユニットは、建設土木工事現場用として開発され、各種工事現場から排出される強アルカリ廃水を硫酸(塩酸)等により、自動で安定したpH制御にて連続中和処理を実施することが可能。
しかもコンパクト化しておりますので据付、現場間の移動等も簡単に施工できます。
また本ユニットは各種工場廃水(酸、アルカリ等)にも対応可能で、制御範囲はpH5.8~8.6を完全にクリアし、記録槽にて中和処理後のpH値を連続記録する機能を有しております。
・ユニット化により簡単に据付・移動ができます。
・据付工事費などが節約でき経済的です。
・機器類をコンパクトにまとめ、メンテナンスも容易です。
・酸系廃水の中和処理も特注にて対応が可能です。
( 但し付属機器類の材質等の考慮が必要になります)
・三角セキにより流量の確認が可能です。
▮ 用途
●アルカリ系廃水
・生コンクリート工場 ・コンクリート二次製品工場 ・砕石工場 ・建設土木工事現場 ・洗ビン、洗浄工場
・クリーニング工場 ・染色、繊維工場 ・その他各種アルカリ性工場廃水 ・排水処理装置前処理、後処理用
●酸系廃水 (特注仕様)
・鍍金、金属表面処理工場 ・電子部品、エッチング工場 ・印刷製版工場 ・酸洗い工場 ・研究室、実験室
・病院、保健所 ・鉄鋼、金属工場 ・スクラバー、洗煙廃水 ・バッテリー工場 ・その他各種酸性工場廃水
・排水処理装置前処理、後処理用
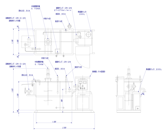
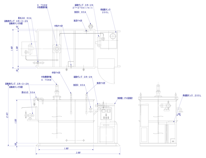
▮ 外形図・仕様一覧表
● PB-05外形図

● PB-10外形図

● 仕様一覧表

※ 上記仕様などは予告なく変更される場合があります。詳細は特機部までお問合せください。
▮ PH中和装置

▮ 特性
PB型pH制御ユニットは、建設土木工事現場用として開発され、各種工事現場から排出される強アルカリ廃水を硫酸(塩酸)等により、自動で安定したpH制御にて連続中和処理を実施することが可能。
しかもコンパクト化しておりますので据付、現場間の移動等も簡単に施工できます。
また本ユニットは各種工場廃水(酸、アルカリ等)にも対応可能で、制御範囲はpH5.8~8.6を完全にクリアし、記録槽にて中和処理後のpH値を連続記録する機能を有しております。
・ユニット化により簡単に据付・移動ができます。
・据付工事費などが節約でき経済的です。
・機器類をコンパクトにまとめ、メンテナンスも容易です。
・酸系廃水の中和処理も特注にて対応が可能です。
( 但し付属機器類の材質等の考慮が必要になります)
・三角セキにより流量の確認が可能です。
▮ 用途
●アルカリ系廃水
・生コンクリート工場 ・コンクリート二次製品工場 ・砕石工場 ・建設土木工事現場 ・洗ビン、洗浄工場・クリーニング工場 ・染色、繊維工場 ・その他各種アルカリ性工場廃水 ・排水処理装置前処理、後処理用
●酸系廃水 (特注仕様)
・鍍金、金属表面処理工場 ・電子部品、エッチング工場 ・印刷製版工場 ・酸洗い工場 ・研究室、実験室・病院、保健所 ・鉄鋼、金属工場 ・スクラバー、洗煙廃水 ・バッテリー工場 ・その他各種酸性工場廃水・排水処理装置前処理、後処理用
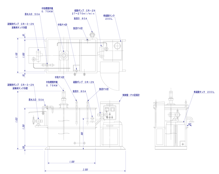
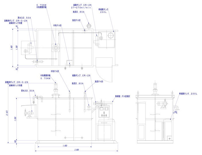
▮ 外形図・仕様一覧表
● PB-05外形図

● PB-10外形図

● 仕様一覧表

※ 上記仕様などは予告なく変更される場合があります。詳細は特機部までお問合せください。